
La riorganizzazione dell’ospedale di Cittadella ha offerto l’occasione per sviluppare un concept innovativo per gli edifici sanitari, che coniuga ridondanza strutturale e impiantistica con soluzioni per la sicurezza di personale e pazienti.
L’estensione degli standard operativi e di sicurezza tipici dei reparti per pazienti infettivi ad altri settori ospedalieri – ad esempio aree per l’emergenza-urgenza, per cure intensive e per degenze ordinarie – è fra le principali esigenze strutturali e tecnologiche emerse a seguito della pandemia del 2020/23.
Il progetto della nuova Piastra Degenze dell’Ospedale di Cittadella (Padova) mette a sistema un insieme di soluzioni spazio-funzionali e impiantistiche che, in situazioni d’emergenza, facilitano la riorganizzazione dell’attività sanitaria secondo protocolli ad alta sicurezza e forniscono condizioni ambientali che garantiscono pazienti e operatori, senza pregiudizio per comfort e umanizzazione.
Problematiche e obiettivi
Centralità del paziente, raggruppamento di funzioni per affinità tecnologica e minimizzazione di complessità e costi di gestione sono i principi ispiratori del progetto avviato nel 2018, con una procedura concorsuale che ha permesso la valutazione di una pluralità di proposte alternative da parte dell’AULSS 6 Euganea.
La ridondanza di percorsi e dotazioni impiantistiche, già prevista nelle linee guida del concorso, è diventata oggetto di approfondimento dopo l’esperienza della pandemia.
Lavorando di concerto con il team aziendale, i progettisti hanno sviluppato:
- un articolato sistema connettivo radiale/circolare che separa i flussi interni in orizzontale e in verticale e che, al contempo, collega l’edificio con il resto dell’ospedale;
- una varietà di configurazioni dei locali annessi alle camere (servizio igienico, filtro sanitario), per garantire un’elevata versatilità d’uso degli ambienti;
- soluzioni impiantistiche che offrono la ridondanza necessaria per assicurare continuità alle attività sanitarie nelle migliori condizioni di sicurezza per personale e pazienti.

L’ing. Emanuele Scarabel è Direttore della UOC Servizi Tecnici e Patrimoniali dell’AULSS e ha curato le linee guida della progettazione:
«La pandemia ha evidenziato i limiti strutturali di molti edifici sanitari. L’elevato consumo di ossigeno, ad esempio, può mettere in crisi l’impianto di erogazione; l’atmosfera sovra-ossigenata comporta un aumento del rischio d’incendio; bisogna inoltre evitare contaminazioni incrociate nei flussi d’aria trattata dai recuperatori. Si è quindi resa necessaria una profonda revisione delle logiche tradizionali, per fronteggiare al meglio futuri scenari ad alta intensità clinica e a elevato rischio infettivo.
La sfida è stata raccolta dal gruppo interdisciplinare coordinato dall’ing. Tommaso Caputo – primo RUP dell’opera – che ha anticipato in parte quanto introdotto successivamente dalla DGR 782/2020 della Regione Veneto.
Si tratta di standard più rigorosi, che rafforzano la resilienza delle strutture ospedaliere attraverso:
- potenziamento delle reti dei gas medicali (portata O2 di 60 l/min con piena contemporaneità, nei reparti infettivi);
- almeno 6 vol/h di ventilazione ambientale in tutte le degenze, per controllare la saturazione dell’O2 con flussi elevati;
- modulazione della pressione (positiva o negativa) in moduli di degenza filtrati, in base alle esigenze cliniche;
- separazione impiantistica tra i moduli, con ridondanza del 20% per le UTA;
- rete idrico-sanitaria configurata per permettere interventi di sanificazione straordinari, anche localizzati».
Il progetto in sintesi
Situata in posizione baricentrica rispetto al presidio ospedaliero, la nuova Piastra Degenze (circa 22.000 m2) sarà composta da:
- volume principale di forma anulare che, a ciascun piano, comprende 3 moduli di degenza con sezione a corpo triplo (camere di degenza, ambienti per lavoro del personale, spazi supporto e servizio, ecc.), più un’appendice con sezione a corpo quintuplo (degenze, ambulatori, altri locali assistenziali e di supporto);
- la cosiddetta “tau”, che contiene il sistema connettivo, i nodi della circolazione verticale e i cavedi impiantistici;
- i corridoi di collegamento con gli edifici limitrofi.
L’apparente libertà formale dell’architettura sottende una geometria rigorosa basata sul modulo di degenza, l’elemento ordinatore dello spazio composto dalla camera, con porta centrale e letti disposti frontalmente, e da due locali di servizio.
L’assetto spaziale facilita il controllo e l’operatività degli operatori sanitari, garantendo ai pazienti un elevato standard qualitativo e un alto grado di riservatezza. La progettazione è stata curata fino al definitivo da un RTP composto fra gli altri da LFA Luisa Fontana Atelier (architettura) e Prisma Engineering (impianti).
Capeggiata da Consorzio Innova, l’ATI aggiudicataria dell’appalto integrato ha affidato la progettazione a un RTP composto da Valle 3.0, Deerns Italia, DVision Architecture e dott. geol. Leonardo Nolasco. I lavori sono iniziati nel marzo 2024, con conclusione prevista entro il 2027.

centrali di trattamento dell’aria al servizio di tutti i livelli inferiori (Valle 3.0) – Credits: Valle 3.0
Spazi e funzioni
L’edificio metterà a disposizione 250 posti letto complessivi (con 22 camere filtrate, pari al 14% del totale) più 22 postazioni tecniche (day hospital) e si svilupperà su 6 livelli, con le seguenti destinazioni d’uso:
- morgue e servizi generali (spogliatoi, magazzini, manutenzione, pulizia, ecc.) al livello -1;
- sala conferenze (in grado di accogliere un ospedale d’emergenza con 16 p.l.) e altre aree collettive (foyer, reception, guardaroba, spazi commerciali, locale ristoro, ecc.), degenze e ambulatori (riabilitazione, day hospital), al livello 0 (terreno);
- degenze (pneumologia, medicina generale, neurologia con stroke unit) e ambulatori al livello 1;
- degenze (cardiologia, medicina generale) ed emodinamica, al livello 2;
- degenze (chirurgia generale, ortopedia e traumatologia, ORL, week surgery e breast unit) e ambulatori al livello 3;
- centrali tecnologiche (copertura).

Dal punto di vista strutturale, la piastra è articolata per permettere l’isolamento di uno o più reparti rispetto al resto del piano, dell’edificio e dell’ospedale, senza comprometterne il funzionamento ordinato ed efficiente. Nella maggior parte dei reparti è inoltre possibile isolare alcune camere di degenza, dotate di filtri pressurizzati rispetto agli altri locali.
A seconda delle necessità è possibile modificare i parametri operativi degli impianti di ventilazione del settore interessato, per l’erogazione di cure a media e alta intensità a pazienti infettivi e immunodepressi. Anche le altre dotazioni impiantistiche meccaniche, elettriche e sanitarie sono configurate con un’opportuna ridondanza, per restituire le migliori condizioni igieniche e operative in ogni condizione.
La parola ai progettisti
Deerns Italia ha curato la progettazione esecutiva degli impianti meccanici ed elettrici:

«L’esperienza compiuta durante la pandemia ha orientato la strategia progettuale secondo un approccio multidisciplinare e fortemente pragmatico – afferma l’ing. Marco Fontana.
L’obiettivo era ottenere una struttura sanitaria sicura e flessibile, in grado di affrontare situazioni d’emergenza con prontezza ed efficacia. Il progetto prevede spazi con destinazione d’uso non sanitaria facilmente convertibili e adattabili in caso di necessità.
La sala conferenze al piano terra, ad esempio, è equipaggiata con l’impiantistica necessaria per attivare di nuovi posti letto provvisori. Sulle pareti dei corridoi e nelle attese dei reparti sono state installate prese elettriche e dei gas medicali aggiuntive, sempre per aumentare temporaneamente la capacità di ricovero.
Ogni singolo modulo di degenza dispone di tutto il necessario per fronteggiare condizioni operative straordinarie, a cominciare dalla possibilità di incrementare il ricambio igienico dell’aria, per mantenere opportune condizioni di salubrità e sicurezza nelle camere. I pazienti che necessitano di una maggiore intensità delle cure possono essere accolti nelle camere filtrate, senza necessità di trasferimento in reparti specialistici».
L’assetto modulare e la forma circolare dell’edificio hanno influenzato lo studio di soluzioni efficaci?

«Dal punto di vista impiantistico – spiega l’ing. Francesca Crespi – ciascun reparto di degenza è isolabile rispetto agli altri e può funzionare in piena autonomia. La Piastra Degenze è quindi un edificio estremamente versatile, composto da moduli distinti e facilmente gestibili.
Per l’impianto aeraulico il committente ha deciso di puntare sulla possibilità di aumentare la capacità di ricambio igienico, piuttosto che sull’introduzione di soluzioni aggiuntive per la filtrazione dell’aria.
La previsione di distribuzioni ad anello è stata facilitata dal concept architettonico, che ha esteso il tema della flessibilità alla scala dei percorsi interni all’ospedale. Di conseguenza anche le reti tecnologiche sono articolate per assicurare un’opportuna ridondanza.
È infatti possibile intercettarne interi tratti, anche in caso di interventi di manutenzione, senza interrompere l’erogazione di elettricità, segnali, acqua, fluidi e gas medicali agli altri moduli e piani. Questo diverso assetto degli impianti ha comportato un impatto anche sulle altre discipline, per quanto attiene sia la previsione di una quantità adeguata di locali tecnici, sia il maggiore ingombro soprattutto delle reti aerauliche. La maggiore complessità delle dotazioni ha comportato un adeguato coordinamento in sede di progettuale».
- sonde di temperatura e umidità ad alta precisione situate in ambiente e a valle della batteria di post-riscaldamento, con pannello touch screen per la regolazione locale, nelle degenze e negli ambulatori;
- sonde cieche nelle aree comuni. Nelle camere di degenza filtrate l’impianto di ventilazione disporrà di cassette VAV in grado di commutare il funzionamento in pressione o depressione, per la camera e per il filtro, manovrando il selettore situato all’ingresso dotato di indicatore luminoso dello stato.
L’impostazione del tasso di ricambio sarà demandata al BACS. Il resto dell’impianto aeraulico sarà regolato da cassette CAV installate sulle canalizzazioni di mandata e ritorno.
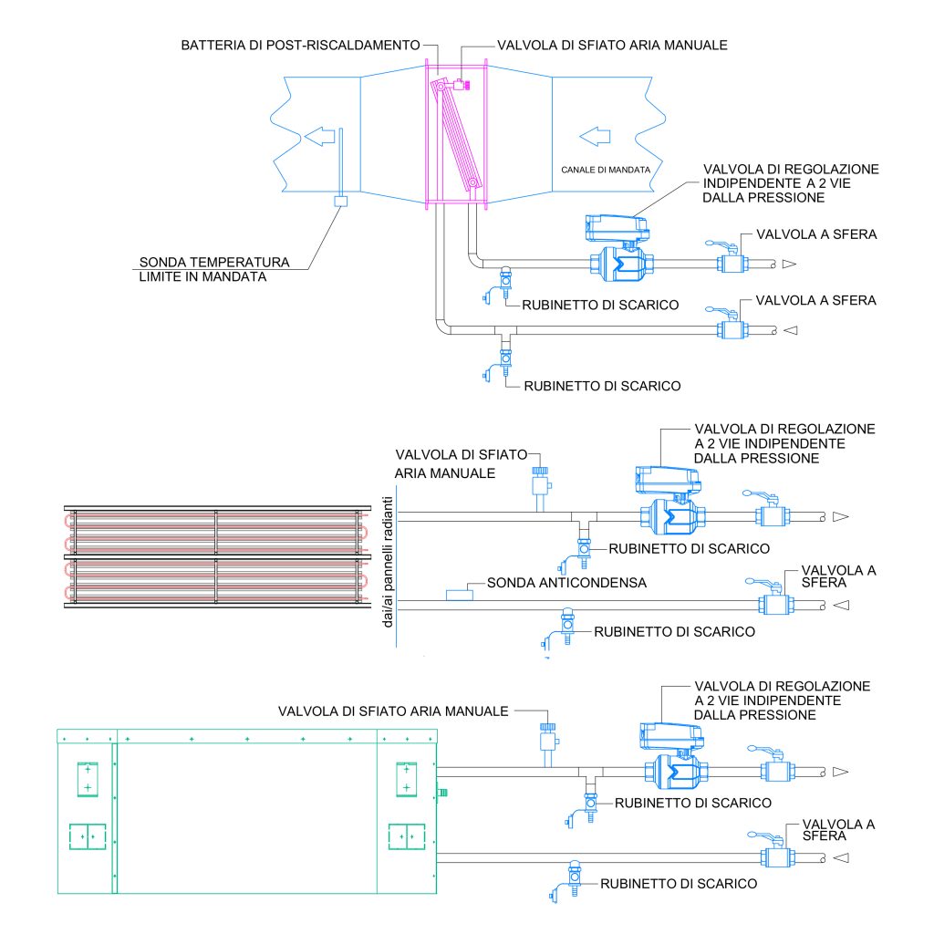
La previsione dei pannelli radianti a soffitto incontra l’esigenza di fornire un più elevato livello di comfort alle persone che utilizzano le camere di degenza ordinaria in configurazione singola, doppia e filtrata. Si tratta di superfici ribassate in cartongesso, sostenute da doppia struttura portante metallica fissata direttamente al solaio (altezza massima complessiva ~10 cm).
Le linee di alimentazione principale a 2 tubi e i raccordi flessibili saranno realizzati con tubazioni in edpm con guaina a maglia d’acciaio inox, ermetico alla diffusione dell’ossigeno. I profili termici in alluminio con serpentine in rame a doppio meandro avranno un passo funzionale al fabbisogno di progetto (pressione d’esercizio max 9 bar). La regolazione sarà affidata a sonde di temperatura e umidità.

Contesto tecnologico ed energetico
I fluidi termovettori per l’intero presidio ospedaliero sono prodotti nel polo tecnologico esistente da:
- 3 caldaie a tubi di fumo (2 da 7.000 kW, 1 da 3.500 kW), con integrazione da cogenerazione;
- 4 gruppi frigoriferi condensati ad acqua (3 da 1.500 kW, 1 da 870 kW) e 1 condensato ad aria (760 kW), con integrazione da trigenerazione.
Il progetto dell’impianto di climatizzazione della Piastra Degenze ha considerato le seguenti condizioni esterne: zona climatica E; gradi giorno 2.386; T invernale -5,2 °C; T estiva 32,5 °C; U.r. 50%. Le condizioni operative interne prevedono T inverno 20 °C e T estate 26 °C (tolleranza ±1 °C), con U.r. 50% (±5%).

La climatizzazione di tutti gli ambienti è stata affidata all’impianto di ventilazione meccanica a tutt’aria, prevalentemente senza ricircolo, con integrazione da parte di pannelli radianti a soffitto nelle camere di degenza. Nei servizi igienici è previsto il solo riscaldamento, mentre i locali tecnologici ad alto carico sensibile disporranno del solo raffrescamento tramite ventilconvettori, con ricircolo dell’aria. Il fabbisogno termofrigorifero della nuova Piastra degenze è stato stimato considerando i recuperi di calore sui trattamenti dell’aria e un fattore di contemporaneità pari al 100%, nell’ordine di:
- 1.845 kW per riscaldamento, con acqua a 55÷45 °C (UTA), 55÷47 °C (radiatori) e 37,2÷33 °C (soffitti radianti);
- 2.658 kW per raffrescamento, con acqua a 8÷13 °C (UTA, ventilconvettori) e 16÷19 °C (soffitti radianti).
La nuova Piastra Degenze inciderà per ~35% (riscaldamento) e ~54% (raffrescamento) rispetto all’attuale potenzialità termofrigorifera, ma l’entrata in funzione del nuovo edificio comporterà la dismissione di numerosi fabbricati. Alla fine dei lavori il polo tecnologico potrà coprire senza modifiche l’intero fabbisogno dell’ospedale.
Il funzionamento degli impianti è affidata a un BACS in classe B concepito come estensione di quello esistente, che utilizza tecnologie standard e con struttura scalabile ed espandibile senza limitazioni, dotato di moduli per la rappresentazione grafica di planimetrie e impianti, il monitoraggio di dati di processo e dei consumi energetici, l’invio di allarmi.
Ecco le previsioni per tipologie di locali:
- 3 vol/h per degenze ordinarie (funzionamento normale);
- 6 vol/h per degenze ordinarie (funzionamento d’emergenza) e filtrate (funzionamento normale), ambulatori, connettivi e locali accessori;
- 8 vol/h per degenze semintensive;
- 10 vol/h per degenze intensive (Stroke unit);
- 12 vol/h per degenze filtrate (funzionamento d’emergenza);
- 15 vol/h per locali sosta salme. Ciascuna delle 20 UTA previste dal progetto (portate complessive massime in mandata e ripresa circa 235.000 m3/h) è dedicata ai singoli moduli di degenza (livelli da 0 a 3) e appendici (livelli 0, 1, 3, con predisposizione per i livelli -1 e 2), agli spazi delle tau (livelli: -1, 0 e 1; 2 e 3) e ad alcuni locali semi-ipogei (livello -1).
Le sezioni di mandata saranno composte da presa d’aria esterna (con silenziatore e serranda), filtrazione (G4, F9), recuperatore di calore sensibile a batterie gemelle, batterie (riscaldamento, raffrescamento con deumidificazione), umidificazione a vapore sterile pulito, ventilatore plugfan con inverter, silenziatore.
Le sezioni di ripresa prevedono silenziatore, filtrazione (M5), ventilatore, recuperatore di calore, silenziatore. Le canalizzazioni saranno realizzate con pannelli sandwich preisolati con superfici autopulenti e antimicrobiche. Percorreranno la copertura servendo direttamente i locali al livello 3, grazie ad asole realizzate nel solaio, e quindi i cavedi verticali fino alle diverse zone servite, proseguendo con dorsali interne ai controsoffitti dei corridoi e stacchi terminali ai diffusori mediante tubazioni flessibili isolate.

Collegamenti e spazi tecnici
La realizzazione di by pass impiantistici, per la rialimentazione di fabbricati e sottocentrali, e la rimozione delle reti presenti nell’area d’intervento sono fra le opere propedeutiche alla costruzione della Piastra Degenze, i cui impianti meccanici saranno quasi completamente derivati dalle dorsali esistenti al servizio del presidio:
- acqua calda (70÷60 °C in inverno; 50÷40 °C in estate) e refrigerata (7÷12 °C) per la climatizzazione;
- vapore tecnico (sporco) e relativa condensa;
- acqua fredda e calda sanitaria con ricircolo, con collegamento alla rete di scarico delle acque reflue;
- gas medicali (aria compressa, O2);
- acqua per impianto antincendio.
Nel nuovo edificio sono previste diverse aree tecniche:
- sottocentrale per impianti meccanici (pompaggio fluidi termovettori con collettori attestati su 2 scambiatori di calore da 1.500 kW ciascuno; distribuzione idrico-sanitaria e scarichi; riciclo acque piovane e rete duale, con serbatoio da 50 m3) e centrale gas medicali (produzione vuoto endocavitario, predisposizione per produzione aria compressa), al livello -1;
- locali per impianti elettrici e speciali nei bracci della tau, ai vari piani in corrispondenza dei nodi della circolazione verticale;
- centrali di trattamento dell’aria, con produzione di vapore pulito per umidificazione (600 kg/h; 8 bar; 175 °C), e campo fotovoltaico, sulla copertura.
Reti e terminali idronici
Le reti di distribuzione idronica prenderanno origine da scambiatori di calore, ciascuno dimensionato per scambiare non meno del 80% della potenza massima di picco, con funzionamento in parallelo e possibilità di fungere da back-up.
Sono previsti circuiti distinti per:
- batterie di riscaldamento delle UTA;
- batterie di raffreddamento delle UTA;
- batterie di post-riscaldamento in ambiente;
- soffitti radianti a 2 tubi, per riscaldamento o raffrescamento;
- radiatori;
- ventilconvettori per raffrescamento locali elettrici.

Attestati su doppie pompe singole con inverter, i circuiti di distribuzione saranno realizzati con tubazioni in polipropilene fibrorinforzato (ppr), suddivisi su 2 linee ciascuna in grado di approvvigionare il 100% della potenza di picco. La distribuzione ai piani sarà realizzata con dorsali ad anello dotate di intercettazioni, per consentire il sezionamento di ogni singolo modulo di piano.
Ogni terminale sarà alimentato da stacchi in tubazioni multistrato di polietilene reticolato e alluminio e sarà dotato di valvole di rubinetto per svuotamento, valvola di intercettazione, sfiato, regolazione auto-bilancianti a 2 vie con funzionamento indipendente dalla pressione, più valvola termostatica per i radiatori.
Altri impianti meccanici
La centrale idrico-sanitaria provvede alla distribuzione di:
- acqua fredda sanitaria, anche per produzione del vapore pulito, carico impianti e alimentazione d’emergenza della rete duale);
- acqua calda sanitaria, con rete di ricircolo.
Ogni tratto di tubazione sarà alimentato da due diverse colonne montanti, garantendo la massima continuità del servizio.
Le reti idrico-sanitarie saranno realizzate con tubazioni in pp-r per usi potabili (dorsali, colonne montanti, anelli di distribuzione ai piani) e multistrato (terminali utenze), secondo uno schema ad anello con sistema “venturi” per eliminare la possibilità di ristagno. Per il trattamento dell’acqua per il consumo umano sono previsti un dispositivo di dosaggio di biocida e l’impiego di shock termici periodici anti-legionella.
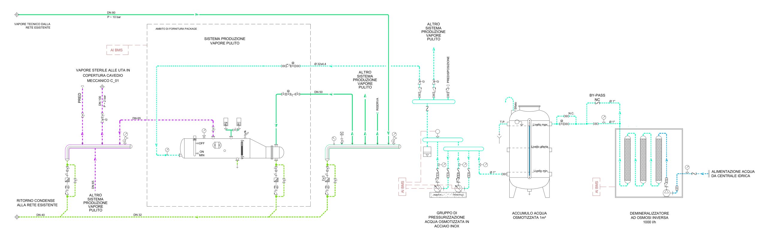
Un sistema di preparazione di acqua osmotizzata accoppiato a 2 generatori a fascio tubiero si occuperà della produzione del vapore pulito, sfruttando il calore di condensazione del vapore tecnico (lato primario) mediante scambio termico indiretto. La rete di scarico di reflui e condensa sarà distinta per acque nere e grigie, realizzata con tubazioni in polietilene ad alta densità o in polivinilcloruro pesante, con isolamento fonoassorbente, ed equipaggiata con ventilazione secondaria e bocche di ispezione nei tratti sub-orizzontali.
Le acque piovane recuperate e stoccate nella vasca dedicata saranno riutilizzate per l’irrigazione delle superfici esterne e, previa chiarificazione con filtrazione a masse e disinfezione con dosaggio di prodotti chimici, e nella rete duale per l’alimentazione delle cassette dei servizi igienici.
L’impianto antincendio sarà composto da tubazioni interne in acciaio zincato ed esterne in polietilene ad alta densità, per l’alimentazione di idranti interni UNI45 (portata ≥ 120 l/min; pressione residua ≥ 2 bar) ed esterni (portata ≥ 300 l/min) e dell’attacco per autopompa. A valle della sottocentrale per i gas medicali, le reti di distribuzione in tubazioni di rame percorreranno i controsoffitti fino ai quadri di decompressione locali, formando circuiti ad anello per l’erogazione di aria compressa (4 bar), O2 (4 bar) 4 vuoto endocavitario (-0,4 bar).