In base alla grandezza di un impianto fotovoltaico è necessario effettuare procedure e pratiche differenti, vediamo nello specifico quali.
Come è noto, per gli impianti fotovoltaici con potenza superiore a 11,08 kW è richiesta la protezione di interfaccia esterna all’inverter. Quest’obbligo comporta anche la verifica delle soglie di intervento tramite apposita cassetta prova relè e la ripetizione del test con cadenza quinquennale. Per impianti maggiori di 20 kW sono inoltre necessari: la pratica con iter ordinario, il rincalzo della protezione d’interfaccia e la richiesta di officina elettrica presso l’Agenzia delle Dogane.
Pratica con iter ordinario
Da gennaio 2016 è possibile richiedere la connessione di impianti fotovoltaici con iter semplificato, avendo come unico interlocutore l’ente distributore. Qualora però la potenza superi i 20 kW, è obbligatorio seguire l’iter ordinario, seguendo il quale occorre accedere anche ai portali di Terna e GSE, con tempi e costi della pratica maggiori.
Pratica agenzie delle dogane
L’apertura di un’Officina Elettrica è operazione abbastanza complessa. Consiglio pertanto di recarsi anticipatamente presso l’Agenzia delle Dogane territorialmente competente per documentarsi sulla procedura da seguire ed essere quindi certi di ottemperare a tutte le richieste. Per poter esercire un impianto maggiore di 20 kW occorre far installare dal distributore un contatore di produzione di tipo MID e dotare di certificato di taratura a banco i TA e gli eventuali TV. È inoltre necessario che un laboratorio abilitato effettui una verifica del gruppo di misura dopo l’installazione.
Occorre infine produrre i seguenti allegati:
• planimetria generale dell’officina elettrica;
• relazione tecnica dell’impianto fotovoltaico;
• schema unifilare dell’impianto;
• schema d’inserzione degli strumenti di misura.

Conclusioni
Quando si sceglie la taglia dell’impianto occorre tenere presente gli oneri maggiori richiesti dalle leggi e dalla normativa per le potenze superiori a 11,08 e 20 kW. Compatibilmente ad altre necessità, è quindi consigliabile optare per taglie immediatamente inferiori a tali soglie.
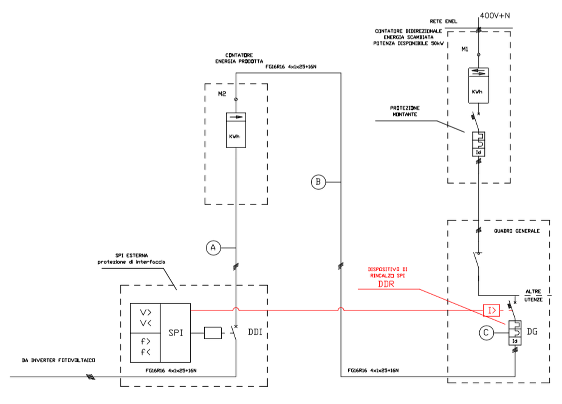
Rincalzo protezione d’interfaccia
Il rincalzo protezione d’interfaccia è un ulteriore dispositivo di riserva oltre al teleruttore, comandato dalla protezione d’interfaccia. Si può realizzare, dotando di bobina di sgancio, un interruttore automatico. Se l’interfaccia comanda lo sgancio del teleruttore, e questo non si apre, l’SPI invia corrente alla bobina di sgancio dell’interruttore aprendo in modo sicuro il circuito di produzione come indicato nello schema qui presente.